Jest to najlepszy projekt z modelu „Jaskółka”, budynek jest piękny, przytulny i bardzo funkcjonalny. Dom został precyzyjnie zaprojektowany dla potrzeb 4-ro lub 5-cio osobowej rodziny. Kompaktowa, zwarta bryła domu, oparta na rzucie prostokąta, jest przykryta dwuspadowym dachem o bardzo prostej konstrukcji drewnianej. Dom zaprojektowano dodatkowo z bardzo przestronnym garażem jednostanowiskowym wbudowanym bryłę budynku. Proste i bardzo funkcjonalne wnętrze zakłada strefę dzienną wraz z pokojem gościnnym na parterze oraz w pełni rozkładową strefę nocną na poddaszu. Przestronny, otwierający się na ogród salon z jadalnią dopełniono częściowo zadaszonym tarasem, który doskonale sprawdzi się jako miejsce na letnie posiłki. Nad pomieszczeniem garażu i kotłowni znajduje się duży strych użytkowy który można przeznaczyć na dodatkowy pokój lub pomieszczenie rekreacyjne. W miarę potrzeb, pomieszczenie strychu można podzielić na dwa mniejsze pokoje. Optymalna wysokość ścianki kolankowej (106 cm w części mieszkalnej i 163 cm w części strychu), pozwala na uzyskanie komfortowej powierzchni mieszkalnej na poddaszu i zachowanie idealnych proporcji bryły obiektu. Budynek stanowi kompromis tradycyjnej formy, współczesnej estetyki oraz nowoczesnych materiałów, takich jak elewacyjna okładzina drewniana, czy szlachetna, gładka dachówka ceramiczna. Ponadczasowa architektura tego niewielkiego domu sprawia, że z łatwością wpisze się w niemal każdy krajobraz. Dom jest bardzo ekonomiczny w użytkowaniu i korzystny cenowo w budowie, doskonały w swojej prostocie.

1 wiatrołap 7,0 m²
2 salon + jadalnia 30,8 m²
3 kuchnia 10,0 m²
4 spiżarnia 2,8 m²
5 pokój 9,8 m²
6 garderoba 2,2 m²
7 łazienka 4,5 m²
8 garaż 25,3 m²
9 kotłownia 7,8 m²
razem 100,2 m²

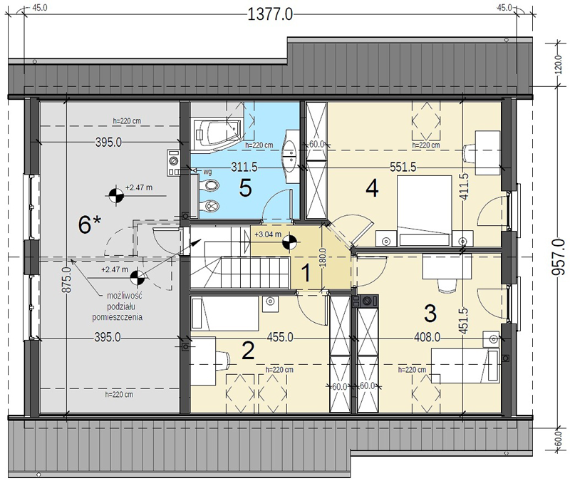
1 korytarz 3,9 m²
2 pokój 10,7 m² (14,8 m²)
3 pokój 14,2 m² (17,8 m²)
4 pokój 16,5 m² (21,4 m²)
5 łazienka 7,3 m² (10,1 m²)
6 strych 31,4 m² (33,6 m²)
razem 84,0 m²


Posadowienie bezpośrednie na zbrojonych ławach i stopach fundamentowych wykonanych z betonu B 20. Ściany fundamentowe: murowane z bloczków betonowych M6. Ściany zewnętrzne: bloczki gazobetonowe gr. 25cm na zaprawie systemowej, ciepłochronnej, ocieplony styropianem fasadowym gr. 15cm. Do ocieplenia budynku zaprojektowano użycie styropianu grafitowego gr. 15 cm, o współczynniku „lambda” nie przekraczającym 0,031 W(mK) i „oporze cieplnym” nie mniejszym niż Rd – 4,0 m2k/W. Zastosowanie materiałów budowlanych (ocieplenie ścian, dachu, podłogi na gruncie, okien i drzwi zewnętrznych) użytych w projekcie odpowiada nowym wymaganiom obowiązującym od stycznia 2021 roku (WT2021). Ściany nośne wewnętrzne: bloczki gazobetonowe gr. 25cm na zaprawie cementowo-wapiennej lub systemowej. Ściany wewnętrzne działowe: bloczki gazobetonowe gr. 12cm. Strop gęstożebrowy z wypełnieniem pustakami betonowymi, zalewany wraz z wieńcami betonem B 20. Konstrukcja dachu: drewniana, drewno klasy C24, więźba dachowa krokwiowo-jętkowa. Budynek, w wersji podstawowej, jest zaprojektowany z pomieszczeniem kotłowni wyposażonej w kocioł ekologiczny na paliwo stałe, biomasę (granulat drzewny – pellet) i spełnia wszystkie wymagania dotyczące WT2021. Istnieje możliwość zamówienia dokumentacji projektowej w wersji ogrzewania gazowego ze wspomaganiem instalacją solarną lub ogrzewania nowoczesną pompa ciepła typu powietrze – woda i ogrzewaniem podłogowym (wersje dodatkowo płatne - zapytaj o cenę). Standard energetyczny budynku, w każdej wersji ogrzewania jest w pełni spełniający wymagania WT2021, przegrody spełniają wymagania dla standardu NF40. Projekt pod względem konstrukcyjnym spełnia normy zgodne z Eurokodami.

Wszystkie gotowe projekty w Lelo Design są autorstwa doświadczonego architekta – Łukasza Lelo, który przy projektowaniu wykorzystuje najnowocześniejsze technologie – 3D oraz BIM.

Możesz dokładnie zobaczyć, jak będzie wyglądał twój nowy dom po zakończeniu budowy – obejrzyj go z zewnątrz, wejdź do przedpokoju, a potem każdego pomieszczenia. Na razie tylko na ekranie komputera.

Możesz porozmawiać z architektem, który projektował wybrany przez ciebie dom. Do twojej dyspozycji są również instalatorzy i konstruktorzy.

Wiemy, jakie emocje towarzyszą oczekiwaniu na projekt, dlatego staramy się je skrócić do minimum. Rozumiemy też, że możesz zmienić zdanie. Masz 90 dni na zwrot oraz 365 na wymianę.
Jaskółka 9 bez garażu – lustro 114,6 m2
Jaskółka 9 bez garażu 114,6 m2
Jaskółka 8 z garażem – lustro 119,7 m2
Jaskółka 8 z garażem 119,7 m2
Jaskółka 5 z garażem XL – lustro 119,7 m2
Jaskółka 5 z garażem XL 119,7 m2
Jaskółka 7 z garażem 2-st. – lustro 119,7 m2
Jaskółka 7 z garażem 2-st. 119,7 m2
Jaskółka 6 z garażem 2-st. – lustro 121,4 m2
Jaskółka 6 z garażem 2-st. 121,4 m2
Jaskółka 5 z garażem – lustro 119,7 m2
Jaskółka 5 z garażem 119,7 m2
Jaskółka 4 z garażem – lustro 121,4 m2
Jaskółka 4 z garażem 121,4 m2
Jaskółka 3 bez garażu – lustro 114,6 m2
Jaskółka 3 bez garażu 114,6 m2
Jaskółka 2 z garażem – lustro 119,6 m2
Jaskółka 2 z garażem 119,6 m2
Jaskółka 1 z garażem – lustro 119,6 m2
Jaskółka 1 z garażem 119,6 m2