Dom został zaprojektowany dla potrzeb 4-ro lub 5-cio osobowej rodziny. Kompaktowa, zwarta bryła domu jest przekryta dwuspadowym dachem o bardzo prostej konstrukcji drewnianej. Dom zaprojektowano dodatkowo z garażem jednostanowiskowym w bryle budynku. Proste i funkcjonalne wnętrze zakłada strefę dzienną wraz z pokojem gościnnym na parterze oraz w pełni rozkładową strefę nocną na poddaszu. Przestronny, otwierający się na ogród salon z jadalnią dopełniono częściowo zadaszonym tarasem, który doskonale sprawdzi się jako miejsce na letnie posiłki. Nad pomieszczeniem garażu znajduje się strych użytkowy który można przeznaczyć na dodatkowy pokój lub pomieszczenie rekreacyjne. Optymalna wysokość ścianki kolankowej (106 cm), jaka została zaprojektowana, pozwala na uzyskanie komfortowej powierzchni mieszkalnej na poddaszu i zachowanie idealnych proporcji bryły obiektu. Budynek stanowi kompromis tradycyjnej formy, współczesnej estetyki oraz nowoczesnych materiałów, takich jak elewacyjna okładzina drewniana, okładzina klinkierowa, czy szlachetna dachówka ceramiczna. Ponadczasowa architektura tego małego domu sprawia, że z łatwością wpisze się w niemal każdy krajobraz.

1 wiatrołap 7,0 m²
2 salon + jadalnia 30,8 m²
3 kuchnia 10,0 m²
4 spiżarnia 2,8 m²
5 pokój 9,8 m²
6 garderoba 2,2 m²
7 łazienka 4,5 m²
8 garaż 19,4 m²
9 kotłownia 4,5 m²

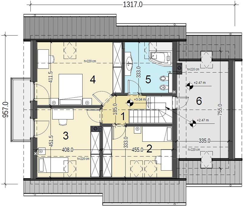
1 korytarz 3,9 m²
2 pokój 10,7 m² (14,8 m²)
3 pokój 14,2 m² (17,8 m²)
4 pokój 16,5 m² (21,4 m²)
5 łazienka 7,3 m² (10,1 m²)
6 strych 18,6 m² (24,6 m²)


Posadowienie bezpośrednie na zbrojonych ławach i stopach fundamentowych wykonanych z betonu B 20. Ściany fundamentowe: murowane z bloczków betonowych M6. Jest to projekt "uniwersalny, powtarzalny", ściany konstrukcyjne zostały zaprojektowane pod pustaki ceramiczne (szerokość 25 cm) lub gazobeton (szerokość 24-25 cm) – w projekcie, na rysunkach została przyjęta grubość 25 cm (ceramika poryzowana, np Porotherm). Bloczek gazobetonowy odmiany 400 - 500, gr. 24-25 cm lub ceramika 25 cm - jest dowolność wyboru materiału na etapie adaptacji projektu lub budowy domu. Ściany fundamentowe z bloczków betonowych M6 o szerokości odpowiednio dobranej do ścian konstrukcyjnych budynku czyli 24 cm lub 25 cm. Strop gęstożebrowy z wypełnieniem pustakami betonowymi, zalewany wraz z wieńcami betonem B 20. Konstrukcja dachu: drewniana, drewno klasy C24, więźba dachowa krokwiowo-jętkowa. Do ocieplenia budynku zaprojektowano użycie styropianu grafitowego gr. 15 cm, o współczynniku „lambda” nie przekraczającym 0,031 W(mK) i „oporze cieplnym” nie mniejszym niż Rd – 4,0 m2k/W. Zastosowanie materiałów budowlanych (ocieplenie ścian, dachu, podłogi na gruncie, okien i drzwi zewnętrznych) użytych w projekcie odpowiada nowym wymaganiom obowiązującym od stycznia 2021 roku (WT2021). Budynek, w wersji podstawowej, jest zaprojektowany z pomieszczeniem kotłowni wyposażonej w kocioł ekologiczny na paliwo stałe, biomasę (granulat drzewny – pellet) i spełnia wszystkie wymagania dotyczące WT2021. Istnieje możliwość zamówienia dokumentacji projektowej w wersji ogrzewania gazowego ze wspomaganiem instalacją solarną lub ogrzewania nowoczesną pompa ciepła typu powietrze – woda i ogrzewaniem podłogowym. Standard energetyczny budynku, w każdej wersji ogrzewania jest w pełni spełniający wymagania WT2021, przegrody spełniają wymagania dla standardu NF40. Projekt pod względem konstrukcyjnym spełnia normy zgodne z Eurokodami.

Wszystkie gotowe projekty w Lelo Design są autorstwa doświadczonego architekta – Łukasza Lelo, który przy projektowaniu wykorzystuje najnowocześniejsze technologie – 3D oraz BIM.

Możesz dokładnie zobaczyć, jak będzie wyglądał twój nowy dom po zakończeniu budowy – obejrzyj go z zewnątrz, wejdź do przedpokoju, a potem każdego pomieszczenia. Na razie tylko na ekranie komputera.

Możesz porozmawiać z architektem, który projektował wybrany przez ciebie dom. Do twojej dyspozycji są również instalatorzy i konstruktorzy.

Wiemy, jakie emocje towarzyszą oczekiwaniu na projekt, dlatego staramy się je skrócić do minimum. Rozumiemy też, że możesz zmienić zdanie. Masz 90 dni na zwrot oraz 365 na wymianę.
Jaskółka 9 bez garażu – lustro 114,6 m2
Jaskółka 9 bez garażu 114,6 m2
Jaskółka 8 z garażem – lustro 119,7 m2
Jaskółka 8 z garażem 119,7 m2
Jaskółka 5 z garażem XL – lustro 119,7 m2
Jaskółka 5 z garażem XL 119,7 m2
Jaskółka 7 z garażem 2-st. – lustro 119,7 m2
Jaskółka 7 z garażem 2-st. 119,7 m2
Jaskółka 6 z garażem 2-st. – lustro 121,4 m2
Jaskółka 6 z garażem 2-st. 121,4 m2
Jaskółka 5 z garażem – lustro 119,7 m2
Jaskółka 5 z garażem 119,7 m2
Jaskółka 4 z garażem – lustro 121,4 m2
Jaskółka 4 z garażem 121,4 m2
Jaskółka 3 bez garażu – lustro 114,6 m2
Jaskółka 3 bez garażu 114,6 m2
Jaskółka 2 z garażem – lustro 119,6 m2
Jaskółka 2 z garażem 119,6 m2
Jaskółka 1 z garażem – lustro 119,6 m2
Jaskółka 1 z garażem 119,6 m2