Dom został zaprojektowany dla potrzeb 4-ro lub 5-cio osobowej rodziny. Kompaktowa bryła domu została przekryta dwuspadowym dachem o bardzo prostej konstrukcji drewnianej. Dom zaprojektowano z lukarną i balkonem nad wejściem głównym oraz wbudowanym przestronnym garażem . Zaprojektowano optymalną wysokość ścianki kolankowej co pozwala na uzyskanie komfortowej powierzchni mieszkalnej na poddaszu i zachowanie idealnych proporcji bryły obiektu. Budynek stanowi kompromis tradycyjnej formy i nowoczesnej estetyki oraz materiałów, takich jak elewacyjna okładzina kamienna, naturalne drewno czy szlachetna dachówka ceramiczna. Funkcjonalne wnętrze zakłada strefę dzienną na parterze oraz w pełni rozkładową strefę nocną na poddaszu. Przestronny, otwierający się na ogród salon z jadalnią usytuowano przy wyjściu na taras, który doskonale sprawdzi się jako miejsce na wspólne posiłki. Ponadczasowa architektura tego średniej wielkości domu sprawia, że z łatwością wpisze się w niemal każdy krajobraz.

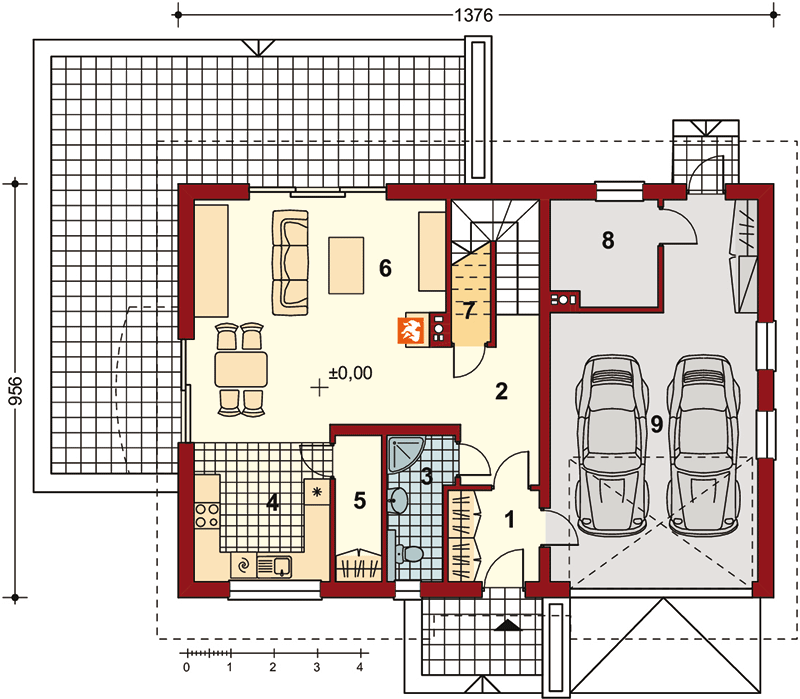
1 wiatrołap 4,1 m²
2 korytarz 6,9 m²
3 łazienka 4,6 m²
4 kuchnia 9,9 m²
5 spiżarnia 3,3 m²
6 pokój dzienny 28,8 m²
7 garderoba 2 m²
8 kotłownia 5,7 m²
9 garaż dwustan. 35,2 m²

1 hall 7,1 m²
2 łazienka 12,8 m²
3 pokój 22,1 m²
4 pokój 18,1 m²
5 pokój 14,4 m²
6 garderoba 5,3 m²


Posadowienie bezpośrednie na zbrojonych ławach i stopach fundamentowych wykonanych z betonu B 20. Ściany fundamentowe: murowane z bloczków betonowych M6. Ściany zewnętrzne: bloczki gazobetonowe gr. 25cm na zaprawie systemowej, ciepłochronnej, ocieplony styropianem fasadowym gr. 15cm. Do ocieplenia budynku zaprojektowano użycie styropianu grafitowego gr. 15 cm, o współczynniku „lambda” nie przekraczającym 0,035 W(mK) i „oporze cieplnym” nie mniejszym niż Rd – 4,0 m2k/W. Zastosowanie materiałów budowlanych (ocieplenie ścian, dachu, podłogi na gruncie, okien i drzwi zewnętrznych) użytych w projekcie odpowiada nowym wymaganiom obowiązującym od stycznia 2021 roku (WT2021). Ściany nośne wewnętrzne: bloczki gazobetonowe gr. 25cm na zaprawie cementowo-wapiennej lub systemowej. Ściany wewnętrzne działowe: bloczki gazobetonowe gr. 12cm. Strop gęstożebrowy z wypełnieniem pustakami betonowymi, zalewany wraz z wieńcami betonem B 20. Konstrukcja dachu: drewniana, drewno klasy C24, więźba dachowa krokwiowo-jętkowa. Budynek, w wersji podstawowej, jest zaprojektowany z pomieszczeniem kotłowni wyposażonej w kocioł ekologiczny na paliwo stałe „pellet” i spełnia wszystkie wymagania dotyczące WT2021. Na etapie adaptacji projektu jest możliwość zaprojektowania ogrzewania gazowego ze wspomaganiem instalacją solarną lub ogrzewania nowoczesną pompa ciepła typu powietrze – woda. Projekt pod względem konstrukcyjnym spełnia normy zgodne z Eurokodami.

Wszystkie gotowe projekty w Lelo Design są autorstwa doświadczonego architekta – Łukasza Lelo, który przy projektowaniu wykorzystuje najnowocześniejsze technologie – 3D oraz BIM.

Możesz dokładnie zobaczyć, jak będzie wyglądał twój nowy dom po zakończeniu budowy – obejrzyj go z zewnątrz, wejdź do przedpokoju, a potem każdego pomieszczenia. Na razie tylko na ekranie komputera.

Możesz porozmawiać z architektem, który projektował wybrany przez ciebie dom. Do twojej dyspozycji są również instalatorzy i konstruktorzy.

Wiemy, jakie emocje towarzyszą oczekiwaniu na projekt, dlatego staramy się je skrócić do minimum. Rozumiemy też, że możesz zmienić zdanie. Masz 90 dni na zwrot oraz 365 na wymianę.