Pinczer 4 z garażem XL, został zaprojektowany dla potrzeb 4-ro lub 5-cio osobowej rodziny, poszukującej domu o klasycznej stylistyce. Budynek jest przekryty dwuspadowym dachem o bardzo prostej konstrukcji drewnianej i kalenicy usytuowanej równolegle do elewacji frontowej. Dodatkowo do budynku został doprojektowany przestronny garaż w poziomie parteru z pomieszczeniem strychu użytkowego na poddaszu. Funkcjonalne, doskonale doświetlone wnętrza zakładają strefę dzienną na parterze oraz w pełni rozkładową strefę nocną na poddaszu. Przestronny, otwierający się na ogród salon z kuchnią oraz jadalnią, dopełniono zaprojektowanym tarasem który doskonale sprawdzi się jako miejsce na letnie posiłki. Dodatkowo na parterze zaprojektowano pomieszczenie mieszkalne które może służyć jako pokój gościnny lub pracownia. Na poddaszu, zaprojektowano optymalną wysokość ścianki kolankowej co pozwala na uzyskanie komfortowej powierzchni mieszkalnej w pokojach i zachowanie idealnych proporcji bryły obiektu. Budynek stanowi kompromis tradycyjnej formy, współczesnej estetyki oraz regionalnych materiałów, takich jak cegła klinkierowa, dachówka ceramiczna czy naturalne drewno. Ponadczasowa architektura tego niewielkiego, eleganckiego domu sprawia, że z łatwością wpisze się w niemal każdy krajobraz.

1 wiatrołap 3,1 m²
2 kotłownia 3,3 m²
3 pokój dzienny 22,8 m²
4 kuchnia 9,7 m²
5 pokój 11 m²
6 wc 1,4 m²
7 korytarz 4,8 m²
8 garaż dwustan. 30,9 m²
razem 87 m²

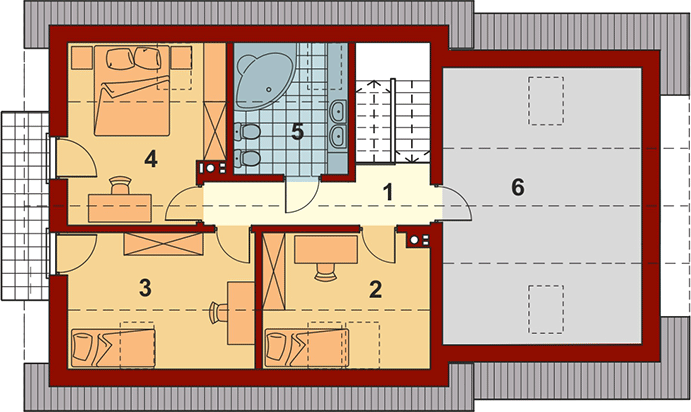
1 korytarz 6,5 m²
2 strych 17,8 m²
3 pokój 9,3 m²
4 pokój 10,4 m²
5 pokój 12,2 m²
6 łazienka 6,1 m²
razem 62,3 m²


Posadowienie bezpośrednie na zbrojonych ławach i stopach fundamentowych wykonanych z betonu B 20. Ściany fundamentowe: murowane z bloczków betonowych M6. Ściany zewnętrzne: bloczki gazobetonowe gr. 24/25cm na zaprawie systemowej, ciepłochronnej, ocieplony styropianem fasadowym gr. 15cm. Do ocieplenia budynku zaprojektowano użycie styropianu grafitowego gr. 15 cm, o współczynniku „lambda” nie przekraczającym 0,035 W(mK) i „oporze cieplnym” nie mniejszym niż Rd – 4,0 m2k/W. Zastosowanie materiałów budowlanych (ocieplenie ścian, dachu, podłogi na gruncie, okien i drzwi zewnętrznych) użytych w projekcie odpowiada nowym wymaganiom obowiązującym od stycznia 2021 roku (WT2021). Ściany nośne wewnętrzne: bloczki gazobetonowe gr. 25cm na zaprawie cementowo-wapiennej lub systemowej. Ściany wewnętrzne działowe: bloczki gazobetonowe gr. 12cm. Strop gęstożebrowy z wypełnieniem pustakami betonowymi, zalewany wraz z wieńcami betonem B 20. Konstrukcja dachu: drewniana, drewno klasy C24, więźba dachowa krokwiowo-jętkowa. Budynek, w wersji podstawowej, jest zaprojektowany z pomieszczeniem kotłowni wyposażonej w kocioł ekologiczny na paliwo stałe „pellet” i spełnia wszystkie wymagania dotyczące WT2021. Na etapie adaptacji projektu jest możliwość zaprojektowania ogrzewania gazowego ze wspomaganiem instalacją solarną lub ogrzewania nowoczesną pompa ciepła typu powietrze – woda. Projekt pod względem konstrukcyjnym spełnia normy zgodne z Eurokodami.

Wszystkie gotowe projekty w Lelo Design są autorstwa doświadczonego architekta – Łukasza Lelo, który przy projektowaniu wykorzystuje najnowocześniejsze technologie – 3D oraz BIM.

Możesz dokładnie zobaczyć, jak będzie wyglądał twój nowy dom po zakończeniu budowy – obejrzyj go z zewnątrz, wejdź do przedpokoju, a potem każdego pomieszczenia. Na razie tylko na ekranie komputera.

Możesz porozmawiać z architektem, który projektował wybrany przez ciebie dom. Do twojej dyspozycji są również instalatorzy i konstruktorzy.

Wiemy, jakie emocje towarzyszą oczekiwaniu na projekt, dlatego staramy się je skrócić do minimum. Rozumiemy też, że możesz zmienić zdanie. Masz 90 dni na zwrot oraz 365 na wymianę.
Pinczer 8 z garażem – lustro 107,3 m2
Pinczer 8 z garażem 107,3 m2
Pinczer 7 z garażem – lustro 103,9 m2
Pinczer 7 z garażem 103,9 m2
Pinczer 6 z garażem – lustro 102,6 m2
Pinczer 6 z garażem 102,6 m2
Pinczer 5 z garażem – lustro 100,7 m2
Pinczer 5 z garażem 100,7 m2
Pinczer 4 z garażem XL – lustro 100,6 m2
Pinczer 4 z garażem XL 100,6 m2
Pinczer 2 z garażem – lustro 112,9 m2
Pinczer 2 z garażem 112,9 m2
Pinczer 1 bez garażu – lustro 100,8 m2
Pinczer 1 bez garażu 100,8 m2