Dom Baset 3, został zaprojektowany dla potrzeb 4-ro lub 5-cio osobowej rodziny. Zwarta, kompaktowa bryła domu została ozdobiona wykuszem w poziomie parteru i lukarną na poddaszu. Dodatkowo w poziomie parteru został doprojektowany garaż jednostanowiskowy wraz z pomieszczeniem gospodarczym, kotłownią. Budynek w głównej części, jest przekryty dwuspadowym dachem o bardzo prostej konstrukcji drewnianej i kalenicy usytuowanej prostopadle do elewacji frontowej, nad garażem zaprojektowano dach półpłaski również o konstrukcji drewnianej. Funkcjonalne, doskonale doświetlone wnętrza zakładają strefę dzienną na parterze oraz w pełni rozkładową strefę nocną na poddaszu. Przestronny, otwierający się na ogród salon z jadalnią i kominkiem, dopełniono zaprojektowanym wykuszem który doskonale sprawdzi się jako miejsce na rodzinne posiłki. Na parterze zaprojektowano pomieszczenie mieszkalne które może służyć jako pokój gościnny lub pracownia. Na poddaszu, dobrano optymalną wysokość ścianki kolankowej co pozwala na uzyskanie komfortowej powierzchni mieszkalnej w pokojach i zachowanie idealnych proporcji bryły obiektu. Budynek stanowi kompromis tradycyjnej formy, współczesnej estetyki oraz regionalnych materiałów, takich jak okładzina kamienna, grafitowa dachówka ceramiczna czy drewno w kolorze naturalnym. Ponadczasowa architektura tego średniej wielkości domu sprawia, że z łatwością wpisze się w niemal każdy krajobraz.

1 wiatrołap 3,3 m²
2 hall 8,3 m²
3 łazienka 4,6 m²
4 pokój dzienny 28,4 m²
5 kuchnia 9,8 m²
6 pokój 12,2 m²
7 spiżarnia 2,8 m²
8 garaż jednostan. 17,3 m²
9 kotłownia 4,4 m²

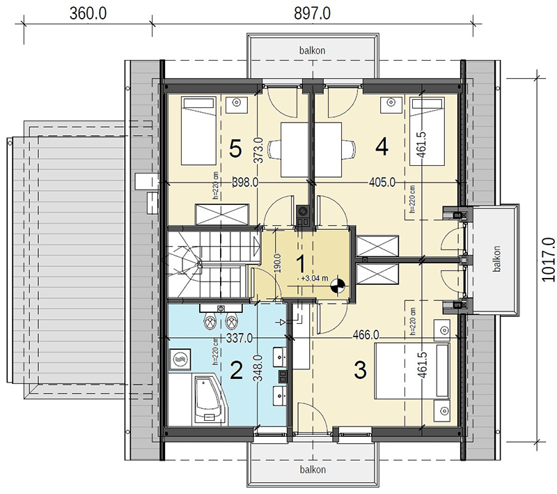
1 korytarz 5,2 m²
2 łazienka 8 m²
3 pokój 15,3 m²
4 pokój 13,6 m²
5 pokój 10,6 m²


Posadowienie bezpośrednie na zbrojonych ławach i stopach fundamentowych wykonanych z betonu B 20. Ściany fundamentowe: murowane z bloczków betonowych M6. Ściany zewnętrzne: bloczki gazobetonowe gr. 25cm na zaprawie systemowej, ciepłochronnej, ocieplony styropianem fasadowym gr. 15cm. Do ocieplenia budynku zaprojektowano użycie styropianu grafitowego gr. 15 cm, o współczynniku „lambda” nie przekraczającym 0,035 W(mK) i „oporze cieplnym” nie mniejszym niż Rd – 4,0 m2k/W. Zastosowanie materiałów budowlanych (ocieplenie ścian, dachu, podłogi na gruncie, okien i drzwi zewnętrznych) użytych w projekcie odpowiada nowym wymaganiom obowiązującym od stycznia 2021 roku (WT2021). Ściany nośne wewnętrzne: bloczki gazobetonowe gr. 25cm na zaprawie cementowo-wapiennej lub systemowej. Ściany wewnętrzne działowe: bloczki gazobetonowe gr. 12cm. Strop gęstożebrowy z wypełnieniem pustakami betonowymi, zalewany wraz z wieńcami betonem B 20. Konstrukcja dachu: drewniana, drewno klasy C24, więźba dachowa krokwiowo-jętkowa. Budynek, w wersji podstawowej, jest zaprojektowany z pomieszczeniem kotłowni wyposażonej w kocioł ekologiczny na paliwo stałe „pellet” i spełnia wszystkie wymagania dotyczące WT2021. Na etapie adaptacji projektu jest możliwość zaprojektowania ogrzewania gazowego ze wspomaganiem instalacją solarną lub ogrzewania nowoczesną pompa ciepła typu powietrze – woda. Projekt pod względem konstrukcyjnym spełnia normy zgodne z Eurokodami.

Wszystkie gotowe projekty w Lelo Design są autorstwa doświadczonego architekta – Łukasza Lelo, który przy projektowaniu wykorzystuje najnowocześniejsze technologie – 3D oraz BIM.

Możesz dokładnie zobaczyć, jak będzie wyglądał twój nowy dom po zakończeniu budowy – obejrzyj go z zewnątrz, wejdź do przedpokoju, a potem każdego pomieszczenia. Na razie tylko na ekranie komputera.

Możesz porozmawiać z architektem, który projektował wybrany przez ciebie dom. Do twojej dyspozycji są również instalatorzy i konstruktorzy.

Wiemy, jakie emocje towarzyszą oczekiwaniu na projekt, dlatego staramy się je skrócić do minimum. Rozumiemy też, że możesz zmienić zdanie. Masz 90 dni na zwrot oraz 365 na wymianę.
Baset 7 bez garażu – lustro 116,5 m2
Baset 7 bez garażu 116,5 m2
Baset 6 z garażem XL – lustro 127,2 m2
Baset 6 z garażem XL 127,2 m2
Baset 5 z garażem XL – lustro 146,1 m2
Baset 5 z garażem XL 146,1 m2
Baset 3 z garażem – lustro 126,5 m2
Baset 3 z garażem 126,5 m2
Baset 2 bez garażu – lustro 121,3 m2
Baset 2 bez garażu 121,3 m2
Baset 1 bez garażu – lustro 116,6 m2
Baset 1 bez garażu 116,6 m2