phone

503 162 943

Porozmawiaj z architektem, który zaprojektował ten dom.

Baset 1 bez garażu

116,6 m2

Kup 3699 zł
phone

503 162 943

Baset 1 bez garażu

116,6 m2

Kup 3699 zł
Najniższa cena z ostatnich 30 dni przed obniżką: 3 699,00 zł

Dane techniczne:

  • Powierzchnia użytkowa 116,6 powierzchnia użytkowa opis m2
  • Minimalne wymiary działki 16,97 x 18,17 minimalne wymiary działki opis m
  • Wysokość budynku 8,26 wysokość budynku opis m
  • Powierzchnia zabudowy 91,4 powierzchnia zabudowy opis m2
  • Kubatura 308,7 kubatura opis m3
  • Kąt nachylenia dachu 40 kąt nachylenia dachu opis st
  • Liczba pokoi 5 liczba pokoi opis

    Opis projektu

    Dom Baset 1, został zaprojektowany dla potrzeb 4-ro lub 5-cio osobowej rodziny. Zwarta, kompaktowa bryła domu idealnie nadaje się na wąskie działki budowlane. Budynek jest przekryty dwuspadowym dachem o bardzo prostej konstrukcji drewnianej i kalenicy usytuowanej prostopadle do elewacji frontowej. Funkcjonalne, doskonale doświetlone wnętrza zakładają strefę dzienną na parterze oraz w pełni rozkładową strefę nocną na poddaszu. Przestronny, otwierający się na ogród salon z jadalnią, dopełniono zaprojektowanym tarasem który doskonale sprawdzi się jako miejsce na letnie posiłki. Dodatkowo na parterze zaprojektowano pomieszczenie mieszkalne które może służyć jako pokój gościnny lub pracownia. Na poddaszu, zaprojektowano optymalną wysokość ścianki kolankowej co pozwala na uzyskanie komfortowej powierzchni mieszkalnej w pokojach i zachowanie idealnych proporcji bryły obiektu. Budynek stanowi kompromis tradycyjnej formy, współczesnej estetyki oraz regionalnych materiałów, takich jak cegła klinkierowa, dachówka ceramiczna czy drewno. Ponadczasowa architektura tego zgrabnego, eleganckiego domu sprawia, że z łatwością wpisze się w niemal każdy krajobraz.

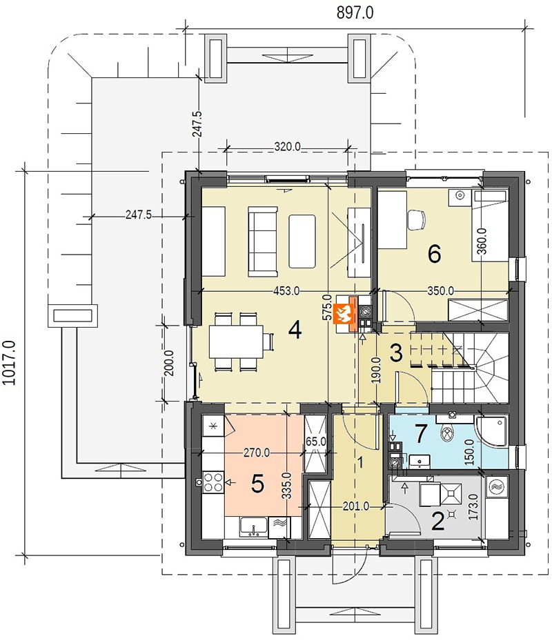
    Rzut parteru

    image

    1 wiatrołap 5,3 m²
    2 kotłownia 5,3 m²
    3 hall 5,2 m²
    4 pokój dzienny 24,4 m²
    5 kuchnia 9,8 m²
    6 pokój 12,2 m²
    7 łazienka 4,4 m²
    razem 66,6 m²

    Rzut poddasza

    image

    1 korytarz 5 m²
    2 łazienka 7,7 m²
    3 pokój 12,3 m²
    4 garderoba 1,7 m²
    5 garderoba 1,7 m²
    6 pokój 11,1 m²
    7 pokój 10,6 m²
    razem 50,1 m²

    Wnętrza

    Usytuowanie domu na działce

    image

    Przekrój

    image

    Technologia budowy

    Posadowienie bezpośrednie na zbrojonych ławach i stopach fundamentowych wykonanych z betonu B 20. Ściany fundamentowe: murowane z bloczków betonowych M6. Ściany zewnętrzne: bloczki gazobetonowe gr. 25cm na zaprawie systemowej, ciepłochronnej, ocieplony styropianem fasadowym gr. 15cm. Do ocieplenia budynku zaprojektowano użycie styropianu grafitowego gr. 15 cm, o współczynniku „lambda” nie przekraczającym 0,035 W(mK) i „oporze cieplnym” nie mniejszym niż Rd – 4,0 m2k/W. Zastosowanie materiałów budowlanych (ocieplenie ścian, dachu, podłogi na gruncie, okien i drzwi zewnętrznych) użytych w projekcie odpowiada nowym wymaganiom obowiązującym od stycznia 2021 roku (WT2021). Ściany nośne wewnętrzne: bloczki gazobetonowe gr. 25cm na zaprawie cementowo-wapiennej lub systemowej. Ściany wewnętrzne działowe: bloczki gazobetonowe gr. 12cm. Strop gęstożebrowy z wypełnieniem pustakami betonowymi, zalewany wraz z wieńcami betonem B 20. Konstrukcja dachu: drewniana, drewno klasy C24, więźba dachowa krokwiowo-jętkowa. Budynek, w wersji podstawowej, jest zaprojektowany z pomieszczeniem kotłowni wyposażonej w kocioł ekologiczny na paliwo stałe, biomasę (granulat drzewny – pellet) i spełnia wszystkie wymagania dotyczące WT2021. Istnieje możliwość zamówienia dokumentacji projektowej w wersji ogrzewania gazowego ze wspomaganiem instalacją solarną lub ogrzewania nowoczesną pompa ciepła typu powietrze – woda i ogrzewaniem podłogowym. Standard energetyczny budynku, w każdej wersji ogrzewania jest w pełni spełniający wymagania WT2021. Projekt pod względem konstrukcyjnym spełnia normy zgodne z Eurokodami.

    Dlaczego warto kupić projekt w Lelo Design?

    • Dopracowane projekty

      Wszystkie gotowe projekty w Lelo Design są autorstwa doświadczonego architekta – Łukasza Lelo, który przy projektowaniu wykorzystuje najnowocześniejsze technologie – 3D oraz BIM.

    • Realistyczne wizualizacje

      Możesz dokładnie zobaczyć, jak będzie wyglądał twój nowy dom po zakończeniu budowy – obejrzyj go z zewnątrz, wejdź do przedpokoju, a potem każdego pomieszczenia. Na razie tylko na ekranie komputera.

    • Kontakt z architektem

      Możesz porozmawiać z architektem, który projektował wybrany przez ciebie dom. Do twojej dyspozycji są również instalatorzy i konstruktorzy.

    • Bezpłatna wysyłka i zwrot

      Wiemy, jakie emocje towarzyszą oczekiwaniu na projekt, dlatego staramy się je skrócić do minimum. Rozumiemy też, że możesz zmienić zdanie. Masz 90 dni na zwrot oraz 365 na wymianę.

    Elewacje

    image image image image

    Projekt należy do kolekcji

    Odwiedź nas na: