phone

503 162 943

Porozmawiaj z architektem, który zaprojektował ten dom.

Bocian 2 z garażem 2-st. – lustro

145,6 m2

Kup 3899 zł
phone

503 162 943

Bocian 2 z garażem 2-st. – lustro

145,6 m2

Kup 3899 zł
Najniższa cena z ostatnich 30 dni przed obniżką: 3 899,00 zł

Dane techniczne:

  • Powierzchnia użytkowa 145,6 powierzchnia użytkowa opis m2
  • Powierzchnia całkowita 269,2 powierzchnia całkowita opis m2
  • Minimalne wymiary działki 21,47 x 19,37 minimalne wymiary działki opis m
  • Wysokość budynku 8,55 wysokość budynku opis m
  • Powierzchnia zabudowy 140,2 powierzchnia zabudowy opis m2
  • Kubatura 495,7 kubatura opis m3
  • Kąt nachylenia dachu 40 kąt nachylenia dachu opis st
  • Powierzchnia dachu 172,8 powierzchnia dachu opis m2
  • Liczba pokoi 4 liczba pokoi opis
  • Stanowiska garażowe 2 stanowiska garażowe opis

    Opis projektu

    Dom został zaprojektowany dla potrzeb 4-ro lub 5-cio osobowej rodziny. Kompaktowa, zwarta bryła domu jest przekryta dwuspadowym dachem o bardzo prostej konstrukcji drewnianej. Dom zaprojektowano dodatkowo z garażem dwustanowiskowym w bryle budynku. Proste i funkcjonalne wnętrze zakłada strefę dzienną wraz z pokojem gościnnym na parterze oraz w pełni rozkładową strefę nocną na poddaszu. Przestronny, otwierający się na ogród salon z jadalnią dopełniono częściowo zadaszonym tarasem, który doskonale sprawdzi się jako miejsce na letnie posiłki. Optymalna wysokość ścianki kolankowej, jaka została zaprojektowana, pozwala na uzyskanie komfortowej powierzchni mieszkalnej na poddaszu i zachowanie idealnych proporcji bryły obiektu. Budynek stanowi kompromis tradycyjnej formy, współczesnej estetyki oraz nowoczesnych materiałów, takich jak elewacyjna okładzina z drewna, okładzina klinkierowa, czy szlachetna dachówka ceramiczna. Ponadczasowa architektura tego średniej wielkości domu sprawia, że z łatwością wpisze się w niemal każdy krajobraz.

    Rzut parteru

    image

    1  wiatrołap   5,6
    2  korytarz   6,0
    3  pokój dzienny + jadalnia   27,2
    4  kuchnia   9,7
    5  spiżarnia   2,9
    6  pokój   14,9
    7  łazienka   3,4
    8  garaż  33,4
    9  kotłownia   4,6
    razem   107,6

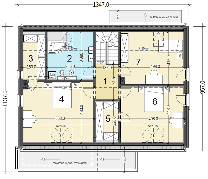
    Rzut poddasza

    image

    1  korytarz   5,0
    2  łazienka   9,7
    3  garderoba  4,7
    4  sypialnia  20,6
    5 garderoba  3,9
    6  pokój   16,7
    7  pokój   15,3
    razem   76,0

    Wnętrza

    Usytuowanie domu na działce

    image

    Przekrój

    image

    Technologia budowy

    Posadowienie bezpośrednie na zbrojonych ławach i stopach fundamentowych wykonanych z betonu B 20. Ściany fundamentowe: murowane z bloczków betonowych M6. Ściany zewnętrzne: bloczki gazobetonowe gr. 25cm na zaprawie systemowej, ciepłochronnej, ocieplony styropianem fasadowym gr. 15cm. Do ocieplenia budynku zaprojektowano użycie styropianu grafitowego gr. 15 cm, o współczynniku „lambda” nie przekraczającym 0,035 W(mK) i „oporze cieplnym” nie mniejszym niż Rd – 4,0 m2k/W. Zastosowanie materiałów budowlanych (ocieplenie ścian, dachu, podłogi na gruncie, okien i drzwi zewnętrznych) użytych w projekcie odpowiada nowym wymaganiom obowiązującym od stycznia 2021 roku (WT2021). Ściany nośne wewnętrzne: bloczki gazobetonowe gr. 25cm na zaprawie cementowo-wapiennej lub systemowej. Ściany wewnętrzne działowe: bloczki gazobetonowe gr. 12cm. Strop gęstożebrowy z wypełnieniem pustakami betonowymi, zalewany wraz z wieńcami betonem B 20. Konstrukcja dachu: drewniana, drewno klasy C24, więźba dachowa krokwiowo-jętkowa. Budynek, w wersji podstawowej, jest zaprojektowany z pomieszczeniem kotłowni wyposażonej w kocioł ekologiczny na paliwo stałe „pellet” i spełnia wszystkie wymagania dotyczące WT2021. Na etapie adaptacji projektu jest możliwość zaprojektowania ogrzewania gazowego ze wspomaganiem instalacją solarną lub ogrzewania nowoczesną pompa ciepła typu powietrze – woda. Projekt pod względem konstrukcyjnym spełnia normy zgodne z Eurokodami.

    Dlaczego warto kupić projekt w Lelo Design?

    • Dopracowane projekty

      Wszystkie gotowe projekty w Lelo Design są autorstwa doświadczonego architekta – Łukasza Lelo, który przy projektowaniu wykorzystuje najnowocześniejsze technologie – 3D oraz BIM.

    • Realistyczne wizualizacje

      Możesz dokładnie zobaczyć, jak będzie wyglądał twój nowy dom po zakończeniu budowy – obejrzyj go z zewnątrz, wejdź do przedpokoju, a potem każdego pomieszczenia. Na razie tylko na ekranie komputera.

    • Kontakt z architektem

      Możesz porozmawiać z architektem, który projektował wybrany przez ciebie dom. Do twojej dyspozycji są również instalatorzy i konstruktorzy.

    • Bezpłatna wysyłka i zwrot

      Wiemy, jakie emocje towarzyszą oczekiwaniu na projekt, dlatego staramy się je skrócić do minimum. Rozumiemy też, że możesz zmienić zdanie. Masz 90 dni na zwrot oraz 365 na wymianę.

    Elewacje

    image image image image

    Projekt należy do kolekcji

    Odwiedź nas na: